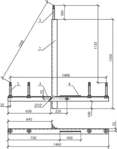
Траверса ТМ-24
цена за шт.
мелко-оптовая
мелко-оптовая
1780 руб.
- действительна до
- 20.09.2015
Данная цена товара неактуальна. Подборку предложений с актуальной ценой смотрите ниже на этой странице или в разделе
- Наличие на складе:
- не указано
- Доставка:
-
не указано
- Цена:
- мелкий опт: 1780.00 руб.
Описание и характеристики
раверса высоковольтная – металлоизделие, узел опоры линии электропередач, служит для закрепления на нем изоляторов для проводов и других элементов линии. Также необходим для создания требуемого изолирующего воздушного промежутка и поддержки проводов.
Цена действительна до 20.09.2015 г., после чего стоимость необходимо уточнить у поставщика.
Поставщик:
ООО "МЕКОН"
- Торжок
- Тверская обл., г.Торжок, ул. Старицкая, д. 96 "А"
- Написать сообщение
